Hofmanweg 2, Enschede
Dit is een droom! Bouw je eigen huis buitenaf!
Durf jij te dromen?
Bouwen op één van de mooiste plekken rondom Lonneker! Bijzonder en uniek!
Op deze plek kan je er werkelijkheid van maken. Een plek waar je paarden of schapen aan huis kunt houden.
De historische bestaande boerderij blijft bewaard als bijgebouw, er staat een kapschuur op het achtererf en aangrenzend ligt de weide. De eerste contouren van jouw nieuwbouwwoning zijn al zichtbaar in de gelegde fundering en de bouwplaats is gereed. Dit is het begin van iets moois en maakt dat bouwen vlot kan verlopen.
Je woont hier op een plek waar de tijd zachtjes lijkt te lopen, waar altijd een plek in de zon te vinden is, omringd door oude houtwallen, weilanden en geschiedenis: dat is precies wat deze unieke nieuwbouwkans aan de Hofmanweg 2 in Lonneker biedt. Op een erf waar de eerste bebouwing al in 1835 werd neergezet, mag jij een volledig vrijstaand huis in landelijke stijl realiseren. Een buitenkans, want nieuw bouwen in het prachtige landschap rondom Lonneker kan nergens! Hier woon je buiten, maar nooit afgelegen. Die historische bebouwing, die zo beeldbepalend is voor de locatie, blijft ook in dit nieuwe plan een toonaangevende rol houden. Zo komen oud en nieuw op een bijzondere manier samen.
De locatie ligt direct aan de rand van het dorp; charmant, bruisend en met een sterk gemeenschapsgevoel. Twee basisscholen, gezellige horeca, een buurtsuper en een actief verenigingsleven. Alles ligt binnen handbereik. En toch kijk je dagelijks uit over weilanden, houtwallen en de kabbelende beek. Voor velen een perfecte mix tussen reuring en rust.
Er ligt een plan; met vergunning en al!
Hiermee kun je dus direct verder; het gehele traject met de gemeente; onderzoeken, rapportages, bouwtekeningen, constructietekeningen, -berekeningen zijn uitgevoerd en leges voldaan. Sloopwerk, graafwerkzaamheden en grondverbetering zijn reeds uitgevoerd en de ruwe fundering inclusief leidingen zijn aangelegd. Met een aannemer naar keuze kun je direct starten. Bestaat de wil om iets anders te bouwen; informeer dan bij de gemeente naar de mogelijkheden. Dan volgt de weg langs de architect en gemeente voor eventueel een wijziging op- of een nieuwe vergunning.
Het plan is beschikbaar en uiteengezet in de brochure. Er is vergunning verleend voor het bouwen van een nieuw woonhuis type Saksische boerderij met een "endskamer". Deze boerderijwoning vormt het hoofdgebouw op het knooperf met de schuur en schuurwoning ernaast.
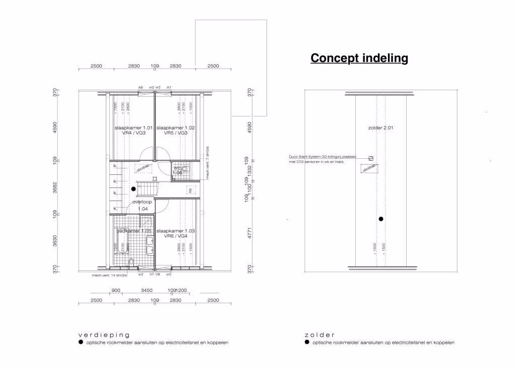
Het ontwerp is landelijk en passend bij de omgeving. De woning wordt gesitueerd in het bouwblok van de royale kavel met weide van in totaal circa 5.800 m², Het woonoppervlak is ca. 250 m² de inhoud ca. 870m³ (incl. endskamer). Dit is tevens de maximaal mogelijke grootte volgens het bestemmingsplan.
Een erf met karakter en behoud van de historische dubbele boerderij die straks als bijgebouw kan worden gebruikt.
Want onderdeel van de ontwikkeling is de transformatie van de bestaande boerderij tot een karakteristieke schuur, waarin het oude eiken gebintwerk opnieuw zichtbaar kan worden gemaakt. De bestaande dubbele boerderij (thans woonhuis) wordt kadastraal gesplitst en daarmee wordt na het realiseren van de nieuwbouw de bestemming van de boerderij aangepast naar bijgebouw. In de koop zit begrepen de helft van de bestaande woning als schuur (ca. 140 m² BVO) en biedt eindeloze mogelijkheden; atelier, stalling, hobbyruimte, B&B, opslag, kantoor… wat past bij jouw leven. Achter op het erf staat een kapschuur met bergzolder voorzien van water en stroom.
Het erf krijgt straks 2 woningen, ieder op een eigen kavel met een ontsluiting op eigen erf en volledige privé gebruiksruimte. Door de natuurlijke lijnen van het landschap en de zorgvuldige plaatsing van beide huizen ontstaat die typische Twente knooperf-beleving, waarbij de rust, autonomie en privacy gewaarborgd zijn.
Knooperf:
Dit erf is er een prachtig voorbeeld van; een traditioneel boerenerf waarbij de boerderij, schuren en bijgebouwen rondom een centraal plein zijn gegroepeerd. Een knooperf is een moderne, ruimtelijke manier om oude erven in het buitengebied nieuw leven te geven. Het is eigenlijk een slimme mix van: behoud van het landschap, hergebruik of versterking van bestaande opstallen, en het toevoegen van één of meerdere nieuwe woningen. Maar dan zo dat het landschap er beter van wordt in plaats van voller of rommeliger. Bovendien een plek met een ziel, een verhaal en een volledig geregeld bouwtraject. Een nieuw erf op historische "olae groond".
Het typisch Twentse erf straalt rust, overzicht en karakter uit. Het nieuwe woonhuis krijgt zo niet alleen een moderne, comfortabele basis, maar maakt deel uit van een erf dat al bijna twee eeuwen geschiedenis ademt. De oude boerderij kan worden getransformeerd tot een karakteristieke schuur, waarmee het centrale hart van het erf behouden blijft.
Een uniek kenmerk is dat de kavel voor een groot deel grenst aan de Esbeek. Een zacht meanderende beek die het erf een natuurlijke en serene rand geeft. Het water maakt de plek extra bijzonder, met altijd iets te zien: vogels, stroming en seizoenen! Op de plek waar vroeger schuren stonden mogen nu 2 nieuwe woningen worden gerealiseerd; de "hoofdboerderij" aan de Hofmanweg 2 en een vakwerk-schuurwoning aan de Hofmanweg 4. Tezamen vormen deze woningen, met de grote schuur aan straat (thans woonhuis), het nieuwe knoopperf. Dit gaat na realisatie één van de mooiste plekken van Lonneker worden!
Historie:
De eerste bebouwing aan de Hofmanweg 2 en 4 dateert al uit 1835; de opstallen zijn in de loop van de tijd aangepast. De dubbele boerderij is bijzonder vanwege het feit dat er enerzijds bijna geen dubbele boerderijen als deze zijn en anderzijds de ligging direct aan de weg. Zo'n 40 jaar geleden was de Hofmanweg nog een zandweg. Op het achterf voor beide gezinnen stond een schuur/stal voor het houden van wat vee en kippen. Aan de Hofmanweg 2 werd een kruidenierswinkeltje gerund door de Fam. Perik, die dit winkeltje maar liefs 4 generaties hebben gerund.. Het grote winkelraam in de kop van de boerderij is een stille getuige van deze bijzondere tijd.. .
Bijzonderheden:
- Vrijstaande nieuwbouwwoning in landelijke stijl
- Kavelgrootte circa 5.800m²
- Volledig startklaar bouwplan, vergunningstraject afgerond.
- Woningontwerp met eiken gebinten en energielabel A+++
- Verwarming via een hybride systeem warmtepomp
- Flexibele indeling, inclusief optie voor gelijkvloers wonen
- Toekomstige schuur van circa 140m² bvo, onderdeel van de transformatie van de boerderij
- Gelegen aan rustige weg in het buitengebied, maar op loopafstand van de kern van Lonneker, 5 min. van de A-1
- Gunstige ligging midden in het Twentse coulisselandschap
- Conform Bouwbesluit en BENG-normen
- Nutsaansluitingen; gas/water/electra/drukriool/glasvezel) zijn gereed, geen wachttijden dus!