IJsselstraat 13, Almelo
Een sfeervolle en knusse woning op een toplocatie in Almelo!
In de prachtige wijk “De Hofkamp” staat deze mooie ruime twee-onder-een kap woning met garage en parkeren op eigen terrein in een kindvriendelijke woonomgeving. Deze heerlijke gezinswoning biedt u volop ruimte en beschikt over een mooie verzorgde tuin met vrijstaande stenen garage. Laat u betoveren door de charme van deze woning en geniet van alle voordelen van het wonen in deze gewilde buurt.
Indeling: entree, hal, meterkast, toilet met fonteintje, kelder, keuken met gaskookplaat, afzuigkap, koelkast, combi-ovenmagnetron, vaatwasser, tuingerichte woonkamer voorzien van airco, de sfeervolle verzorgde achtertuin is zowel via de woonkamer als keuken te bereiken.
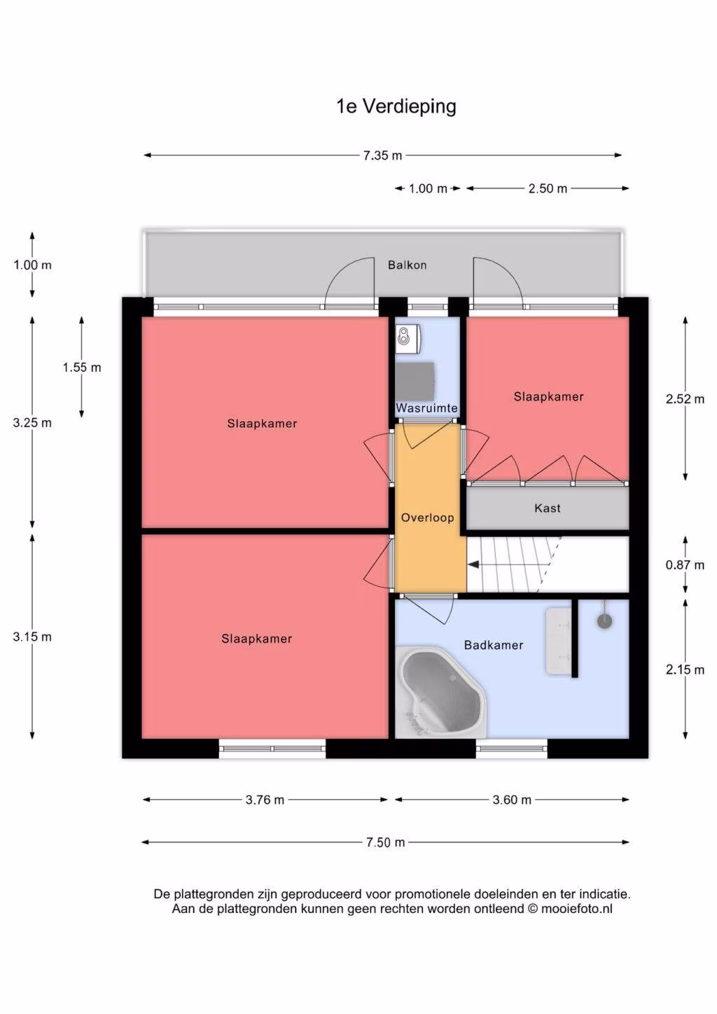
Eerste verdieping: overloop, drie slaapkamers, waarvan twee slaapkamers met doorloop naar het balkon en één slaapkamer voorzien van airco , riante badkamer voorzien van inloopdouche, ligbad, designradiator en dubbele wastafel, was- en stookruimte.
Bijzonderheden:
-Bouwjaar 1957;
-Inhoud 352 m3,
-Woonoppervlakte 98m2;
- Perceeloppervlakte 255m2;
-Daalderop hr-ketel 2008 in eigendom;
-17 zonnepanelen;
-2 airco’s;
-Schilderwerk buiten 2023;
-Zonnescherm en rolluiken achterzijde woning;
-fraai aangelegde tuin met garage en vrijstaande berging is gesitueerd op het zuidoosten;
-dichtbij scholen, centrum en winkels;
-Aanvaarding in overleg.
De wijk “De Hofkamp” ligt nabij het centrum, tegen het groene buitengebied van De Gravenallee en met alle voorzieningen binnen handbereik.
Deze presentatie is informatief. Alle verstrekte informatie moet beschouwd worden als een uitnodiging tot het doen van een bod of om in onderhandeling te treden. Onzerzijds wordt echter geen enkele aansprakelijkheid aanvaard voor enige onvolledigheid, onjuistheid of anderszins, dan wel de gevolgen daarvan. Alle opgegeven maten en oppervlakte zijn indicatief.
